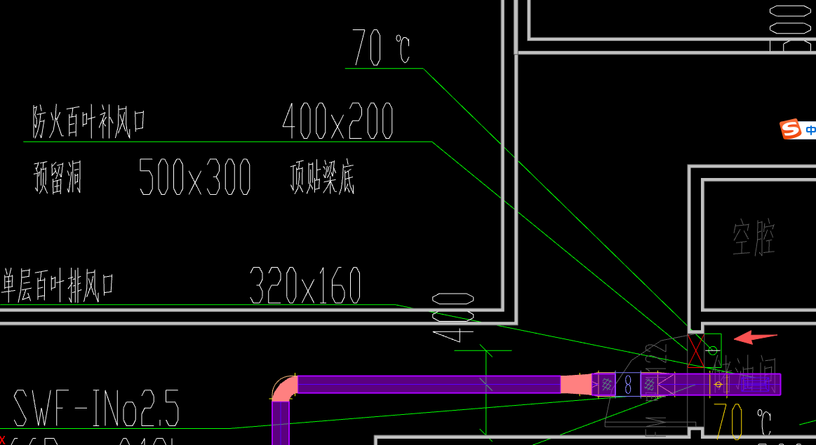
答疑:这个地方需要算风管的量吗?还是直接防火阀和风口连接?

提问网友:xiaozi
提问日期:2025-11-26 21:27:56

风管


解答网友:小老百姓

白银专家

需要计算

0

评论0

请先
高清无水印 2020沪J110 人民防空警报设施专用房图集.pdf
高清无水印 2020沪J110 人民防空警报设施专用房图集.pdf
9分钟前 有人购买 去瞅瞅看
没有账号?注册  忘记密码?

社交账号快速登录

微信扫一扫关注
扫码关注后会自动登录网站