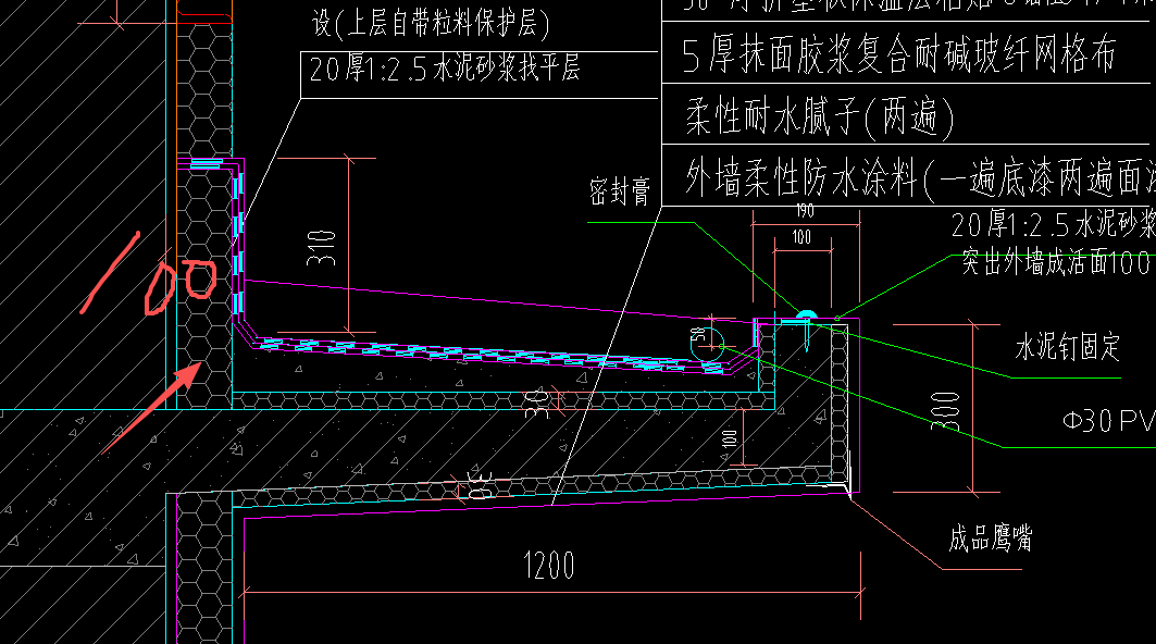
答疑:这个保温100厚,上面的防水计算立面时是按310还是410

提问网友:半瓶雪碧
提问日期:2025-11-24 16:04:56

防水计算


解答网友:可遇难求

钻石专家

310+100计算。

0

评论0

请先
高清无水印、带书签 22K311-5 防排烟系统设备及部件选用与安装图集(替代07K103-2)
高清无水印、带书签 22K311-5 防排烟系统设备及部件选用与安装图集(替代07K103-2)
8分钟前 有人购买 去瞅瞅看
没有账号?注册  忘记密码?

社交账号快速登录

微信扫一扫关注
扫码关注后会自动登录网站