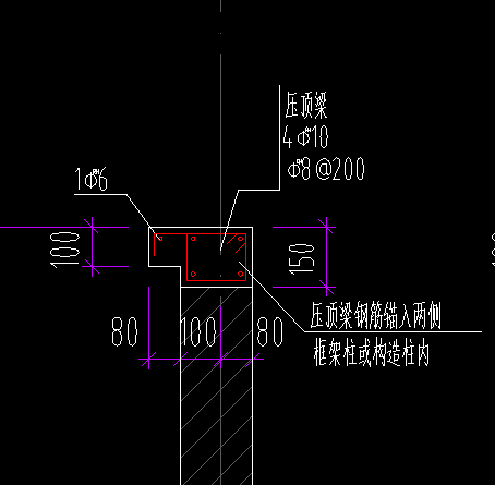
答疑:这里压顶梁可以用异性圈梁画吗

提问网友:hekk
提问日期:2025-11-24 15:20:35

顶梁


解答网友:下雨天

白银专家

完全可以

解答网友:十年工程人

专家

可以的

解答网友:xagcc

钻石专家

可以的

解答网友:这不会那不会反正不会

白银专家

可以的

解答网友:造价达达

完全可以

解答网友:天山雪豹

黄金专家

可以的

解答网友:星霜荏苒

钻石专家

直接用异形压顶画就行,截面编辑里画钢筋

0

评论0

请先
高清完整、正式版 DL/T 5814-2020 变电站、换流站土建工程施 质量验收规程(附条文说明).pdf
高清完整、正式版 DL/T 5814-2020 变电站、换流站土建工程施 质量验收规程(附条文说明).pdf
10分钟前 有人购买 去瞅瞅看
没有账号?注册  忘记密码?

社交账号快速登录

微信扫一扫关注
扫码关注后会自动登录网站