BIM
BIM吧
整体模型
族
其他资料
Dynamo
设计
方案
整体场景
单体模型
RHINO
施工图设计
结构
机电设计
材质渲染
D5素材
ENS素材专区
lumion素材
PS素材
规范图集
标准规范
行业图集
教程
视频
软件
Office
编程
造价
施工技术
计量计价
造价答疑
在线工具
管理
登录
注册
搜索
当前位置:
首页
造价
造价答疑
正文
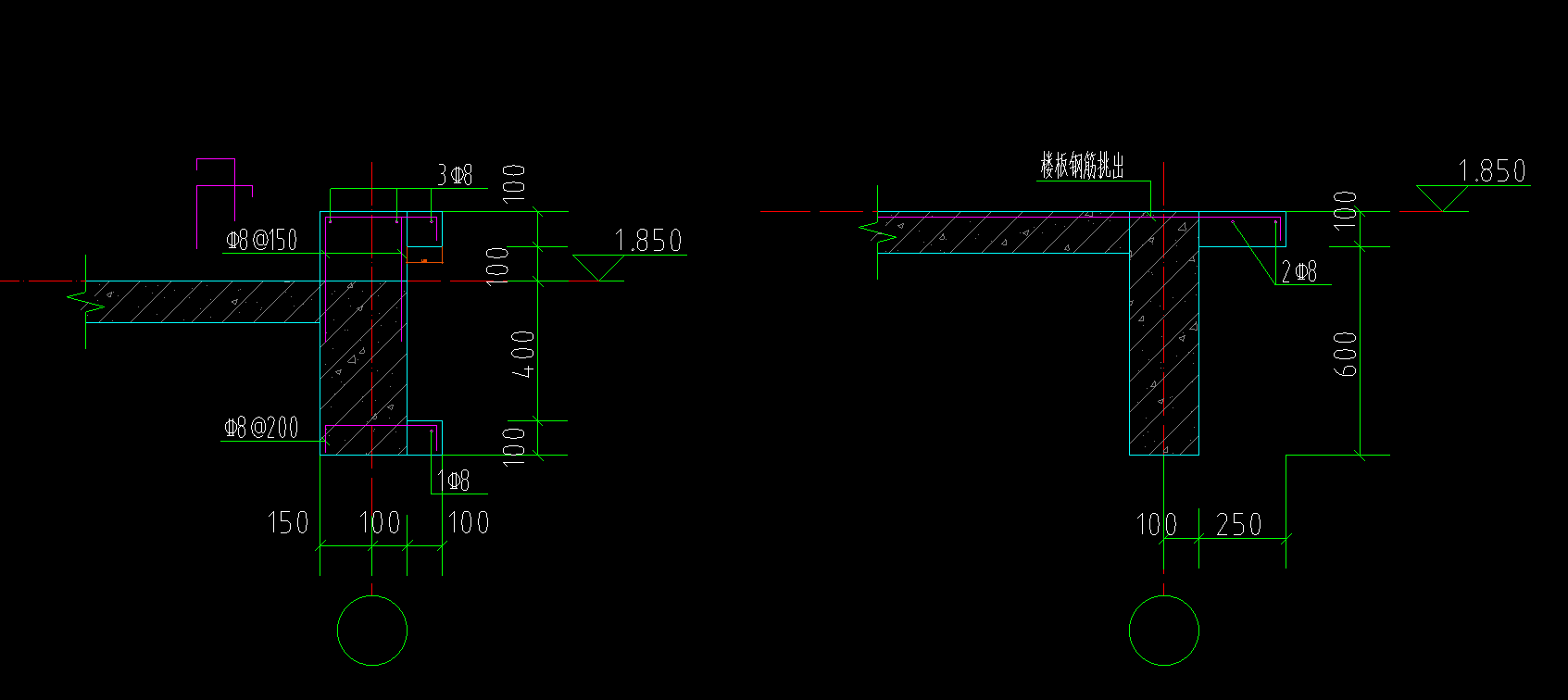
答疑:请问板挑出部分怎么画
1分钟前
造价答疑
1
推广
提问网友:半只橘
提问日期:2025-11-24 14:33:19
解答网友:天海一线
黄金专家
可以用板布置,钢筋用板受力筋布置
0
广联达
上一篇
答疑:压力排水和排水的区别在哪,麻烦有没有大神简单易懂直接的讲一下,最好一针见血的
下一篇
答疑:纵筋根数怎么计算
猜你喜欢
造价答疑
答疑:市政排水管网扣除检查井长度问题
提问网友:陕西安装提问日期:2025-11-24 14:38:00市政排水管网扣除检查井长度问题...
38秒前
0
造价答疑
答疑:请问根据山东24清单是不是墙面腻子不计算窗侧,无机涂料计算窗侧
提问网友:无心提问日期:2025-11-24 14:38:08已采纳解答网友:星霜荏苒 ...
48秒前
0
造价答疑
答疑:请问宿舍走廊的隐形防盗网,取清单哪个列项?套广东定额哪个子目?
提问网友:黄炽沛提问日期:2025-11-24 14:32:24解答网友:米老鼠 ...
52秒前
0
造价答疑
答疑:人防楼梯顶部做法有平时与战时之分,分别是盖板和阳光房,请问控制价阶段应计入哪部分
提问网友:A提问日期:2025-11-24 14:32:32解答网友:米老鼠 ...
55秒前
0
造价答疑
答疑:纵筋根数怎么计算
提问网友:章提问日期:2025-11-24 14:33:12解答网友:黄金甲战斗机 ...
58秒前
0
造价答疑
答疑:压力排水和排水的区别在哪,麻烦有没有大神简单易懂直接的讲一下,最好一针见血的
提问网友:扶光照月提问日期:2025-11-24 14:33:43解答网友:芋头 ...
1分钟前
0
评论
0
请先
登录
2、3#楼铝合金模板全过程施工技术质量交底PPT
刚刚 有人购买
去瞅瞅看
在线客服
升级VIP
返回顶部
没有账号?
注册
忘记密码?
社交账号快速登录
已有账号?
登录
社交账号快速登录
微信扫一扫关注
扫码关注后会自动登录网站
使用其他方式登录/注册
评论0