提问网友:深海里的小虾米
提问日期:2025-11-24 11:45:48
如下图外墙外侧垂直筋分上下两部分,上部是C14@200,下部是C14/C12C@100隔一布一,请教一下第一个是C14@200的钢筋是应该通长还是应该从1500的位置往上去?第二这种情况的钢筋应该如何设置?
解答网友:Bel
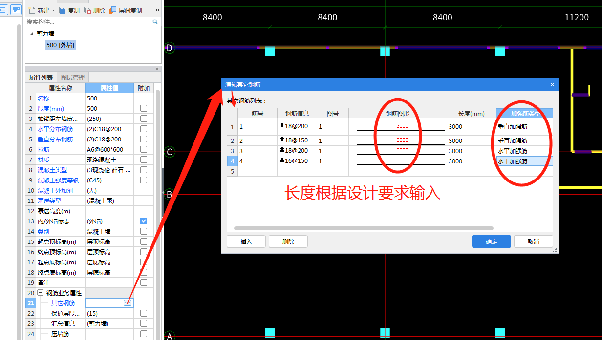
第一个通长设置,第二个在其他钢筋中手动输入(垂直加强筋)
解答网友:星霜荏苒
钻石专家
垂直筋(2)C14@200; 底部C12@200是附加的垂直筋,在 其它钢筋 里输,长度=1500+基础高度-底部保护层+底部弯折
解答网友:十年工程人
专家
在剪力墙属性列表中的【其它钢筋】中输入(其它钢筋为公有属性,输入后同名称剪力墙均会计算,若只是给同名称的部分剪力墙设置其它钢筋,建议将剪力墙修改为不同名称的构件,再输入其它钢筋)
解答网友:石姐
铂金专家
垂直加强筋要你管管是C12@200
和通长分布筋交错开就是间距100的啦







评论0