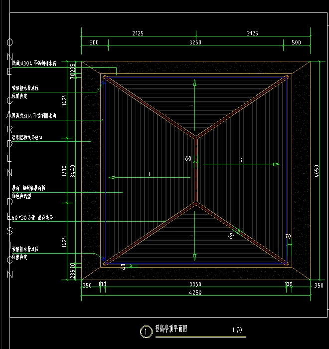
答疑:这个登高亭若按项来报,是否项目特征包含这些?这些里面是否有必须单独算量的?

提问网友:李先群
提问日期:2025-11-24 11:43:05

项目特征算量答疑解惑


解答网友:djyy

黄金专家

有完整图纸最好都算量套价

0

评论0

请先
SL∕T 336-2025 水土保持工程质量验收与评价规范
SL∕T 336-2025 水土保持工程质量验收与评价规范
9分钟前 有人购买 去瞅瞅看
没有账号?注册  忘记密码?

社交账号快速登录

微信扫一扫关注
扫码关注后会自动登录网站