提问网友:努力学习
提问日期:2025-11-24 11:30:41
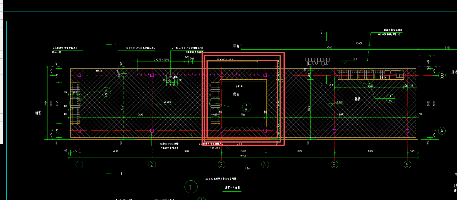
图纸为廊架的平面图,红色框内为绿地种植土。搜索相关资料没有找到依据,来请教各位老师:绿地种植区域算不算平整场地的面积?
如果不算 请说明理由
如果计取面积 请列出相关定额或者规范
解答网友:Bel
不算;
平整场地是指建筑物(或构筑物)场地厚度在 ±30cm 以内的挖、填、运、找平作业,计算规则为 “按建筑物(或构筑物)的首层建筑面积计算。
红框内不属于建筑物的施工场地或占地面积,而是独立的绿化工程;(绿地种植是后续绿化工程的内容,不属于建筑主体施工的 “场地平整” 范围)




评论0