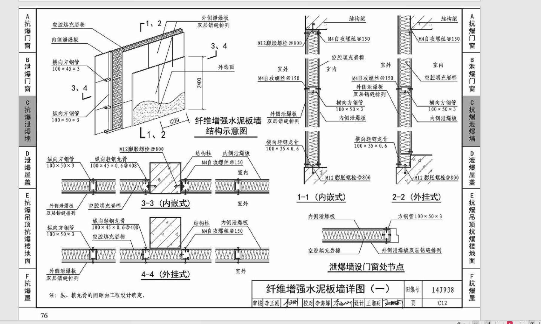
答疑:这种泄爆墙需要做装修吗

提问网友:落落
提问日期:2025-11-24 08:32:00

爆墙

做装修


已采纳
解答网友:大家广联

钻石专家

要做装饰

解答网友:可遇难求

钻石专家

一般需要装饰的。

0

评论0

请先
CAD版!湖北省电网公司配电网工程10kV柱上变压器台典型设计图纸!
CAD版!湖北省电网公司配电网工程10kV柱上变压器台典型设计图纸!
3分钟前 有人购买 去瞅瞅看
没有账号?注册  忘记密码?

社交账号快速登录

微信扫一扫关注
扫码关注后会自动登录网站