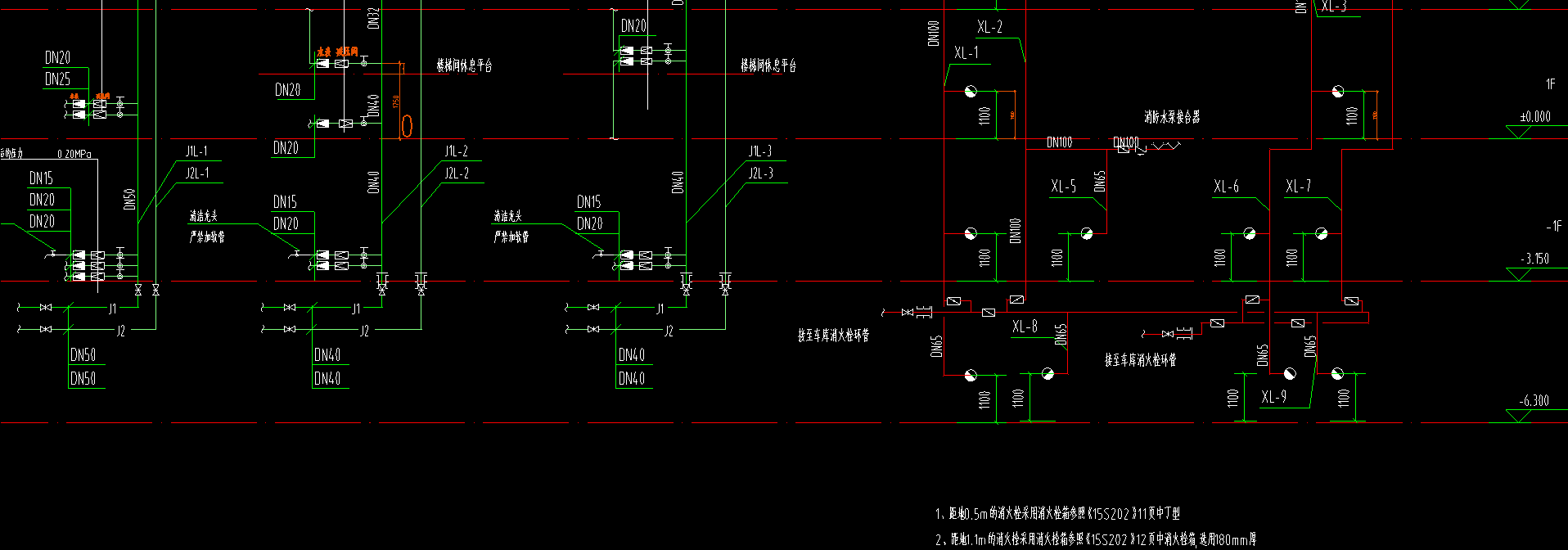
答疑:我结合系统图 平面图 并没有找到这个-0.8这个标高 这是什么意思?

提问网友:gwlsyb
提问日期:2025-11-22 09:07:08

标高系统图答疑解惑


解答网友:xagcc

钻石专家

这不是标高-0.8,是层顶标高-0.8,也就是这一层的层顶标高下的0.8m处

解答网友:nh

钻石专家

广联达服务新干线

0

评论0

请先
主网输电线路实操培训视频(18版定额)
主网输电线路实操培训视频(18版定额)
6分钟前 有人购买 去瞅瞅看
没有账号?注册  忘记密码?

社交账号快速登录

微信扫一扫关注
扫码关注后会自动登录网站