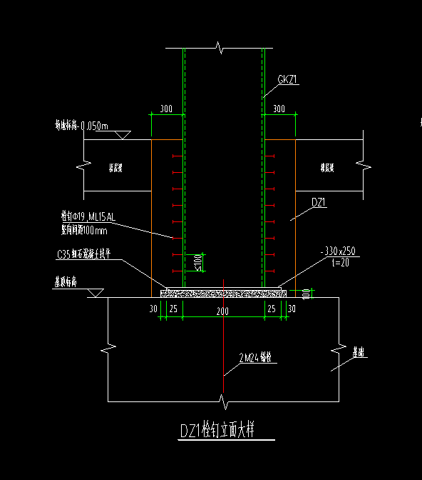
答疑:请问栓钉平面大样图右下角的尺寸是哪个构件的尺寸呢

提问网友:半只橘
提问日期:2025-11-21 16:45:50

大样图

构件

答疑解惑


解答网友:执伞

白银专家

底板广联达服务新干线

解答网友:陈工

钻石专家

是立面大样的水平剖面图。

0

评论0

请先
2024版最新变电+输电线路(电缆)工程施工作业票典型模板打包!
2024版最新变电+输电线路(电缆)工程施工作业票典型模板打包!
5分钟前 有人购买 去瞅瞅看
没有账号?注册  忘记密码?

社交账号快速登录

微信扫一扫关注
扫码关注后会自动登录网站