答疑:火灾自动报警总线回路是按一根连接到消控室还是一个端子箱等于一个回路连接消控室

提问网友:九九
提问日期:2025-11-21 13:05:24

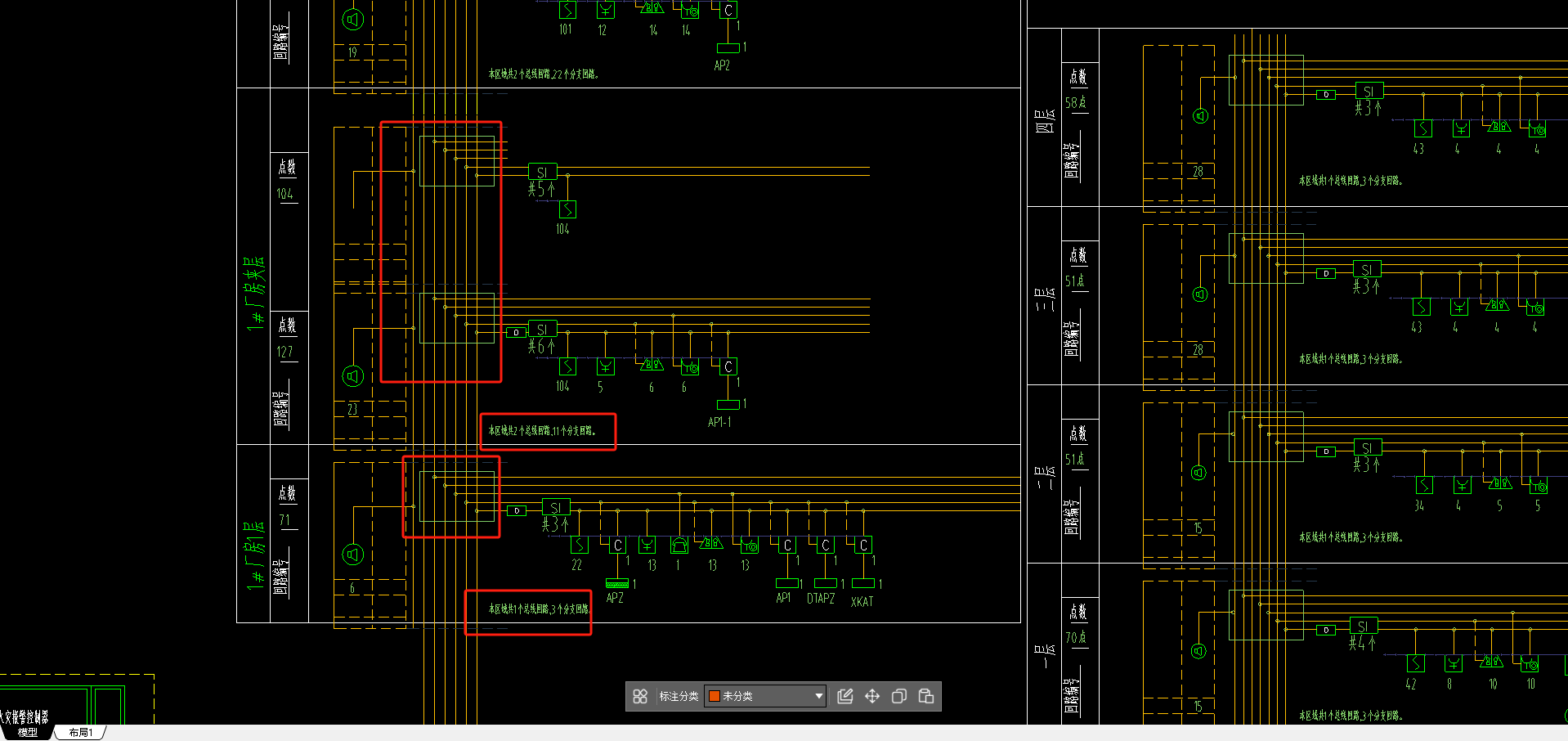
图纸这样是不是等于3根总线回路引至消控室火灾自动报警


解答网友:xagcc

钻石专家

一个端子箱等于一个回路连接消控室连接的。

0

评论0

请先
DLT 1461-2023风力发电机组用齿轮油维护管理导则
DLT 1461-2023风力发电机组用齿轮油维护管理导则
5分钟前 有人购买 去瞅瞅看
没有账号?注册  忘记密码?

社交账号快速登录

微信扫一扫关注
扫码关注后会自动登录网站