答疑:门式钢架问题 谢谢

提问网友:野比野比
提问日期:2025-11-21 10:49:26

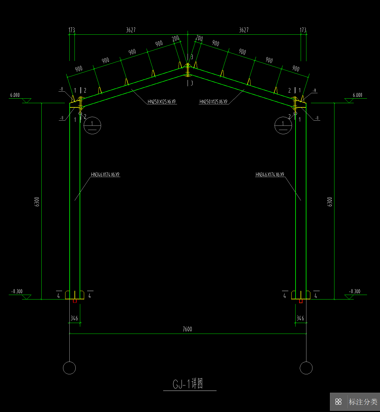
① 这个门式钢架往GJG里绘制的时候,梁段数是一段,梁构件是HM*250*125*6*9,对吗?

② 怎么判断梁段数?是不是有几种规格的钢材就是几段?

钢材

构件


解答网友:Bel

梁段数是一段,可以理解为根据梁规格分段数或者理解为看梁连接的节点,如图答疑解惑

0

评论0

请先
正式版 T/CECS 120-2021 套接紧定式钢导管电线管路施工及验收规程(附条文说明).pdf
正式版 T/CECS 120-2021 套接紧定式钢导管电线管路施工及验收规程(附条文说明).pdf
3分钟前 有人购买 去瞅瞅看
没有账号?注册  忘记密码?

社交账号快速登录

微信扫一扫关注
扫码关注后会自动登录网站