答疑:筏板加厚区域的钢筋形式,用什么构建可以实现,钢筋信息怎么输入

提问网友:阿姨洗铁路
提问日期:2025-11-21 10:46:28

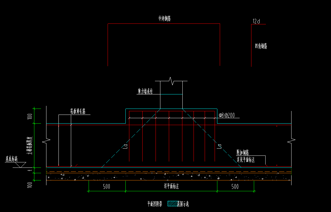
筏板加厚区筏板


解答网友:钢筋撑起半边天

钻石专家

上柱墩处理

答疑解惑

解答网友:SOFTICE

铂金专家

建柱墩,上柱墩

解答网友:薛子庆

黄金专家

上柱墩,附加筋可以再其它钢筋输入,也可以用筏板负筋定义绘制

0

评论0

请先
渗漏、开裂、夹渣、露筋问题层出不穷?学学这份主体结构强制性工艺标准,提高质量!PDF资料下载!
渗漏、开裂、夹渣、露筋问题层出不穷?学学这份主体结构强制性工艺标准,提高质量!PDF资料下载!
5分钟前 有人购买 去瞅瞅看
没有账号?注册  忘记密码?

社交账号快速登录

微信扫一扫关注
扫码关注后会自动登录网站