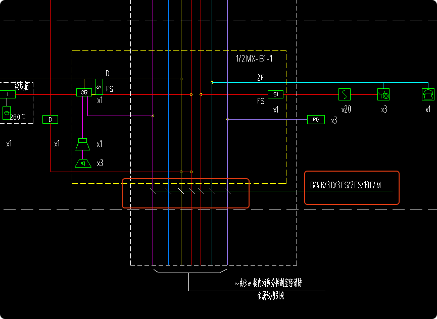
答疑:消防电系统图中例如:4K、3D这种是需要单根乘4乘3吗?

提问网友:泡泡
提问日期:2025-11-21 10:45:35

电系统图


已采纳
解答网友:quninxia

是的,比如4k,就代表四根控制线

0

评论0

请先
GB/T50854-2024房屋建筑与装饰工程工程量计算标准-在线版全网首发,附送2024版清单全集10册OCR可搜索版及最全对比表PDF下载
GB/T50854-2024房屋建筑与装饰工程工程量计算标准-在线版全网首发,附送2024版清单全集10册OCR可搜索版及最全对比表PDF下载
刚刚 有人购买 去瞅瞅看
没有账号?注册  忘记密码?

社交账号快速登录

微信扫一扫关注
扫码关注后会自动登录网站