答疑:天棚吊顶的灯槽不展开计算吗?

提问网友:杜荣荣
提问日期:2025-11-21 10:15:35

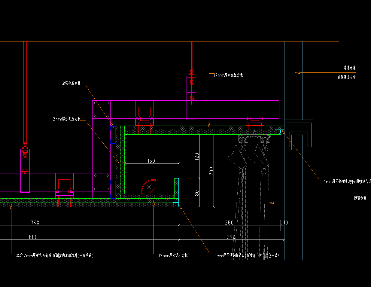
灯槽


解答网友:胡老师

黄金专家

灯槽150+80要展开计算面积。

解答网友:可遇难求

钻石专家

展开,并入吊顶计算。

0

评论0

请先
彩色PDF《创建鲁班奖 工程细部做法指导》中国建筑业协会
彩色PDF《创建鲁班奖 工程细部做法指导》中国建筑业协会
8分钟前 有人购买 去瞅瞅看
没有账号?注册  忘记密码?

社交账号快速登录

微信扫一扫关注
扫码关注后会自动登录网站