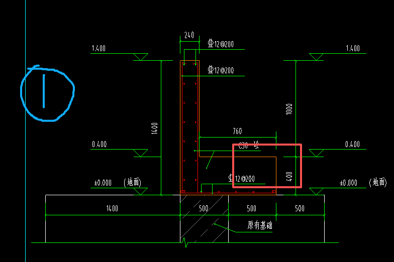
答疑:图1那400厚的是按条基套定额?图2圈起来的地方是按直行墙定额?还是其它,感谢了

提问网友:小肥仔
提问日期:2025-11-21 10:05:03

条基套定额答疑解惑


解答网友:轻舟淡月

铂金专家

是的

解答网友:米老鼠

铂金专家

1、按条基套子目

2、套基础的子目

解答网友:先天造价圣体

专家

是的

0

评论0

请先
高清完整18ETZ001市政工程细部构造做法图集
高清完整18ETZ001市政工程细部构造做法图集
3分钟前 有人购买 去瞅瞅看
没有账号?注册  忘记密码?

社交账号快速登录

微信扫一扫关注
扫码关注后会自动登录网站