提问网友:Haruka
提问日期:2025-11-21 09:57:08


已采纳
解答网友:石姐
铂金专家

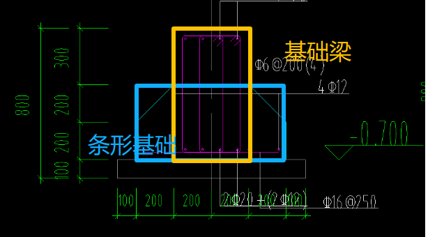
条形基础+基础梁
解答网友:钢筋撑起半边天
钻石专家
分别定义条基+基础梁处理
解答网友:下雨天
白银专家
条基+基础梁
解答网友:xagcc
钻石专家
这需要用条基及基础梁分别定义布置处理的
提问网友:Haruka
提问日期:2025-11-21 09:57:08


已采纳
解答网友:石姐
铂金专家

条形基础+基础梁
解答网友:钢筋撑起半边天
钻石专家
分别定义条基+基础梁处理
解答网友:下雨天
白银专家
条基+基础梁
解答网友:xagcc
钻石专家
这需要用条基及基础梁分别定义布置处理的
评论0