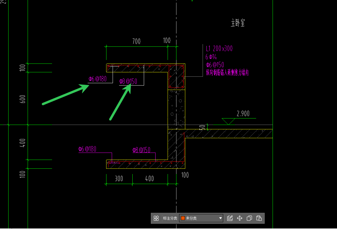
答疑:这部分我都 板来画,c6-180、c8-150都是面筋吗

提问网友:ggg
提问日期:2025-11-21 09:30:36

面筋


解答网友:SOFTICE

铂金专家

c6-180、c8-150都是面筋

解答网友:建筑文盲

专家

是的

0

评论0

请先
CAD全套!南方电网变电站电能计量装置典型设计图集-xycost.com
CAD全套!南方电网变电站电能计量装置典型设计图集-xycost.com
8分钟前 有人购买 去瞅瞅看
没有账号?注册  忘记密码?

社交账号快速登录

微信扫一扫关注
扫码关注后会自动登录网站