提问网友:匿名用户
提问日期:2025-11-17 21:17:49
已采纳
解答网友:宋娟
专家
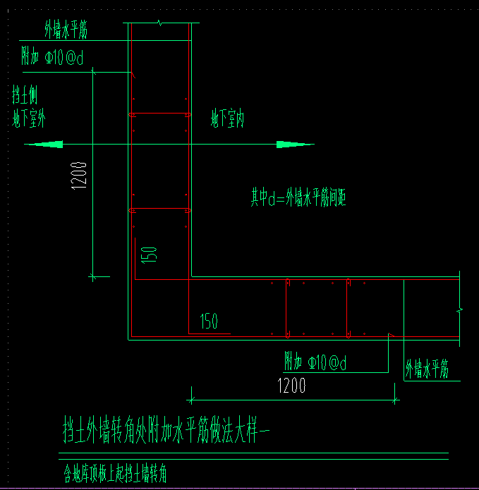
你好:根据图纸所示这个是挡土墙外侧的非通长水平附加钢筋
可以使用自定义钢筋绘制,或者在墙的【其它钢筋】中输入。
1、【其他钢筋】中输入的只是一排的信息,若需要设置2排,可以输入2次,或者输入排数+级别+直径+间距的形式,如:2C12@200。如图:按照图纸所显示计算输入钢筋的长度

根据您的图纸,建议在墙的【其它钢筋】中输入,计算会比较准确直观方便。
希望可以帮助到你
解答网友:GXZ
钻石专家
可以在表格中编辑,也可以定义布置暗柱,附加钢筋在属性其它箍筋里编辑
解答网友:欢乐心中飞雪
钻石专家
可以在剪力墙的其他钢筋输入计算的





评论0