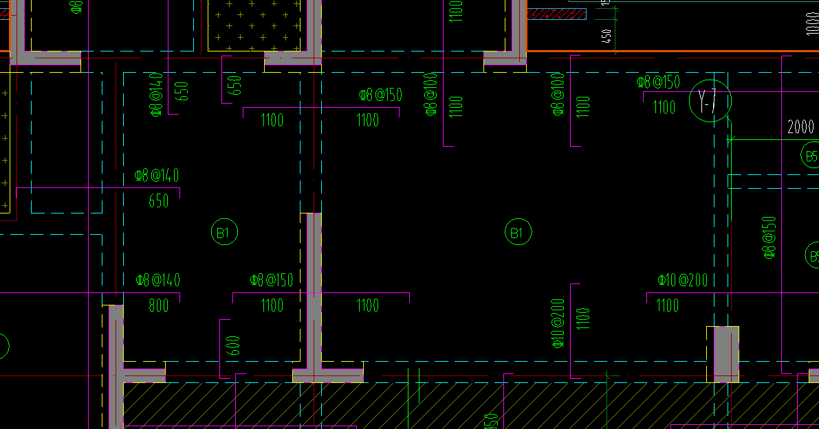
答疑:图纸的详平面说的是什么?以这个B1为例,他的面筋详平面是啥?图纸的钢筋是负筋吧

提问网友:中华田园猫
提问日期:2025-11-14 15:41:43

负筋面筋


已采纳
解答网友:下雨天

专家

平面图上未设置面筋,那就是没有面筋,只有底筋+支座负筋

解答网友:匿名用户

有负筋就行了,不用再布置通长面筋

解答网友:古娜拉黑暗之神

白银专家

你找找图纸说明吧,应该会写B1板底多高

0

评论0

请先
《矿山隐蔽致灾因素普查规范》KA_T 22.1~3-2024,共3部分PDF
《矿山隐蔽致灾因素普查规范》KA_T 22.1~3-2024,共3部分PDF
1分钟前 有人购买 去瞅瞅看
没有账号?注册  忘记密码?

社交账号快速登录

微信扫一扫关注
扫码关注后会自动登录网站