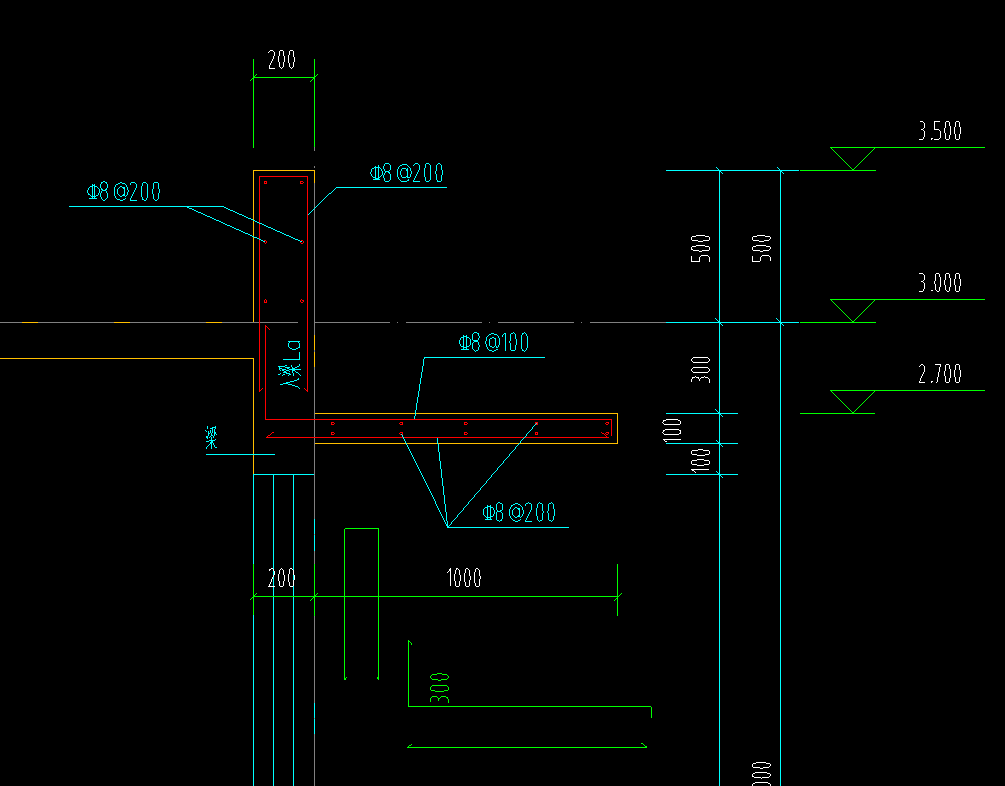
答疑:这种女儿墙和雨蓬建模怎么布置?

提问网友:小白
提问日期:2025-11-14 12:07:07

女儿墙

雨蓬

2025-11-14 12:08:43 补充

钢筋及模型布置。


解答网友:米老鼠

铂金专家

墙用剪力墙

雨篷用雨篷或用板去定义和画

钢筋在属性里用其他钢筋去输入

解答网友:GXZ

钻石专家

板面反起的用剪力墙或栏板定义布置,U型钢筋在属性其他钢筋里编辑,悬挑的雨棚可以用板定义布置

解答网友:下雨天

专家

剪力墙+挑檐

0

评论0

请先
水运管[2022]130号-水利部关于印发《关于推进水利工程标准化管理的指导意见》《水利工程标准化管理评价办法》及其评价标准的通知
水运管[2022]130号-水利部关于印发《关于推进水利工程标准化管理的指导意见》《水利工程标准化管理评价办法》及其评价标准的通知
8分钟前 有人购买 去瞅瞅看
没有账号?注册  忘记密码?

社交账号快速登录

微信扫一扫关注
扫码关注后会自动登录网站