答疑:板负筋问题

提问网友:小牛马
提问日期:2025-11-14 10:39:10

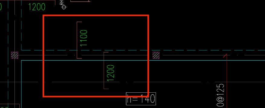
内边线   板负筋这两个负筋是从中心开始还是外边线还是内边线,图上像是外边线,按照外边线会提示布筋范围重叠。


解答网友:钢筋撑起半边天

钻石专家

负筋的线长度

答疑解惑

广联达服务新干线

0

评论0

请先
DB21/T 3722.1~3-2023 高标准农田建设指南 三个部分PDF汇总下载
DB21/T 3722.1~3-2023 高标准农田建设指南 三个部分PDF汇总下载
8分钟前 有人购买 去瞅瞅看
没有账号?注册  忘记密码?

社交账号快速登录

微信扫一扫关注
扫码关注后会自动登录网站