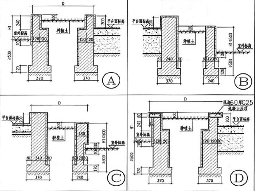
答疑:老师们,这里的A-D什么意思?11zj901 12-3里的

提问网友:朏朏
提问日期:2025-11-14 10:24:29

答疑解惑

这个我理解的是第17页,A-D有四个啊,到底看哪里

2025-11-14 10:25:15 补充

15页广联达服务新干线

2025-11-14 10:26:07 补充

16页

湖南

2025-11-14 10:26:32 补充

17页

建筑行业快速问答平台-答疑解惑


解答网友:钢筋撑起半边天

钻石专家

A~D同时考虑  还有B/16

0

评论0

请先
中天施工总平面布置作业指导书
中天施工总平面布置作业指导书
9分钟前 有人购买 去瞅瞅看
没有账号?注册  忘记密码?

社交账号快速登录

微信扫一扫关注
扫码关注后会自动登录网站