BIM
BIM吧
整体模型
族
其他资料
Dynamo
设计
方案
整体场景
单体模型
RHINO
施工图设计
结构
机电设计
材质渲染
D5素材
ENS素材专区
lumion素材
PS素材
规范图集
标准规范
行业图集
教程
视频
软件
Office
编程
造价
施工技术
计量计价
造价答疑
在线工具
管理
登录
注册
搜索
当前位置:
首页
造价
造价答疑
正文
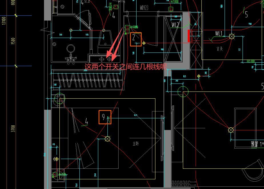
答疑:这连个开关之间连几根线呢
18分钟前
造价答疑
1
推广
提问网友:O
提问日期:2025-11-13 16:22:55
解答网友:芋头
黄金专家
什么开关
几联的
0
上一篇
答疑:这个200是什么
下一篇
答疑:PHC桩引孔结算审计时需要什么资料
猜你喜欢
造价答疑
答疑:各位老师,请问钢结构楼梯的面层氟碳漆涂料计算规则是什么
提问网友:hahah提问日期:2025-11-13 17:17:17解答网友:刘建宁 ...
41秒前
0
造价答疑
答疑:谁有06MS201-2发我下2832686773@qq.com
提问网友:Ruxian提问日期:2025-11-13 17:17:45已采纳解答网友:钢筋撑起半边天 ...
47秒前
0
造价答疑
答疑:请问这个是接地装置吗
提问网友:..提问日期:2025-11-13 17:18:12解答网友:大家广联 ...
50秒前
0
造价答疑
答疑:12j6-35-4
提问网友:资料员提问日期:2025-11-13 17:10:5012j6-35-4麻烦老师邮箱发我一下吧1...
54秒前
0
造价答疑
答疑:这种是不是把原来的c8-100/200改为c8-100?
提问网友:小官提问日期:2025-11-13 17:13:53已采纳解答网友:米老鼠 ...
1分钟前
0
造价答疑
答疑:12j6-35
提问网友:资料员提问日期:2025-11-13 17:14:1512j6-35麻烦老师邮箱发我谢谢14995...
1分钟前
0
评论
0
请先
登录
高清正式版 DGJ32/TJ229-2018 住宅智能信报箱建设标准.pdf
6分钟前 有人购买
去瞅瞅看
在线客服
升级VIP
返回顶部
没有账号?
注册
忘记密码?
社交账号快速登录
已有账号?
登录
社交账号快速登录
微信扫一扫关注
扫码关注后会自动登录网站
使用其他方式登录/注册
评论0