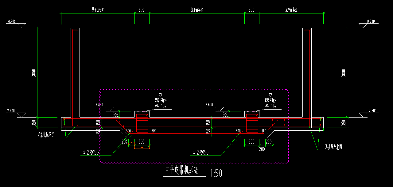
答疑:如图,这种设备基础广联达该怎么建模,筏板+柱+剪力墙吗?剪力墙画在哪个位置?

提问网友:江
提问日期:2025-11-13 15:33:19

墙画

筏板

答疑解惑


解答网友:陈工

钻石专家

底板是筏板,四周是剪力墙,里面位置是设备基础。

白色虚线是设备基础的位置。

解答网友:阿古木力

黄金专家

图三不就是剪力墙

0

评论0

请先
新22G02 钢筋混凝土结构构造
新22G02 钢筋混凝土结构构造
9分钟前 有人购买 去瞅瞅看
没有账号?注册  忘记密码?

社交账号快速登录

微信扫一扫关注
扫码关注后会自动登录网站