答疑:怎么区分图中吊顶式平级吊顶还是跌级吊顶?

提问网友:
提问日期:2025-11-10 19:21:52

吊顶式吊顶答疑解惑广联达服务新干线


解答网友:zhangy

黄金专家

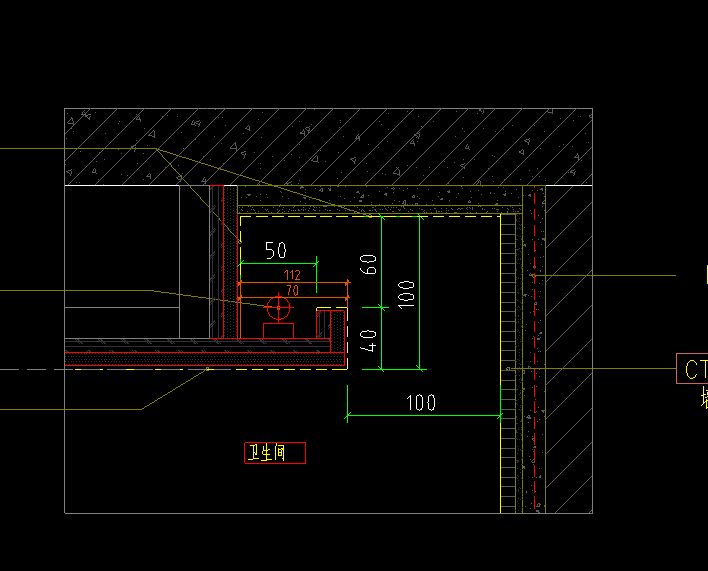
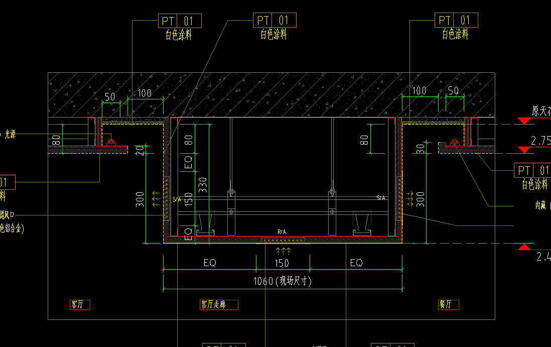
最后一个图是跌级,前两个图是平级。

解答网友:独行者

铂金专家

跌级式

0

评论0

请先
广东电网公司配网工程标准设计和典型造价(2017版)04第四 册 电缆线路
广东电网公司配网工程标准设计和典型造价(2017版)04第四 册 电缆线路
刚刚 有人购买 去瞅瞅看
没有账号?注册  忘记密码?

社交账号快速登录

微信扫一扫关注
扫码关注后会自动登录网站