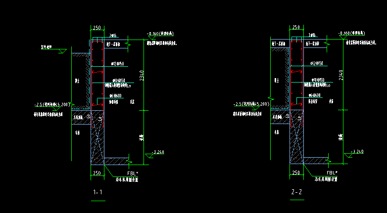
答疑:这个用哪个构件画

提问网友:多加醋
提问日期:2025-11-10 18:06:51

构件答疑解惑


已采纳
解答网友:GXZ

钻石专家

用剪力墙或篮板定义布置,U型钢筋在属性其他钢筋里编辑

解答网友:烁楠科技

钻石专家

用剪力墙定义绘制

解答网友:天山雪豹

黄金专家

剪力墙构件处理

0

评论0

请先
T_CEC 442-2021 直流电缆载流量计算公式
T_CEC 442-2021 直流电缆载流量计算公式
10分钟前 有人购买 去瞅瞅看
没有账号?注册  忘记密码?

社交账号快速登录

微信扫一扫关注
扫码关注后会自动登录网站