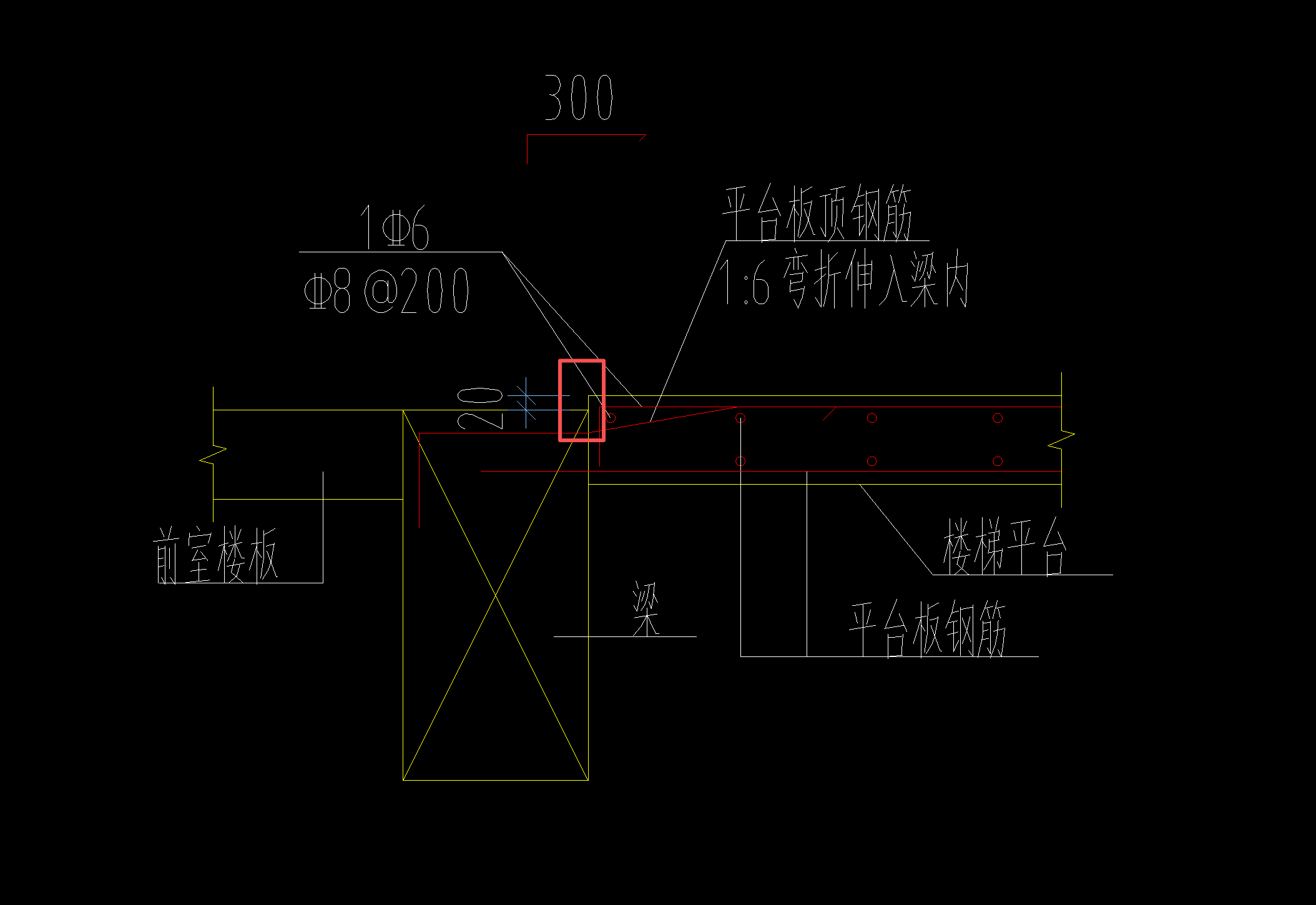
答疑:请问这种上翻只有20的怎么施工支模

提问网友:阳光灿烂的日子
提问日期:2025-11-08 15:11:50

支模


解答网友:烁楠科技

钻石专家

一般就是用木方即可

解答网友:雪花飘 飘

铂金专家

吊模

0

评论0

请先
新22N1 供暖工程
新22N1 供暖工程
5分钟前 有人购买 去瞅瞅看
没有账号?注册  忘记密码?

社交账号快速登录

微信扫一扫关注
扫码关注后会自动登录网站