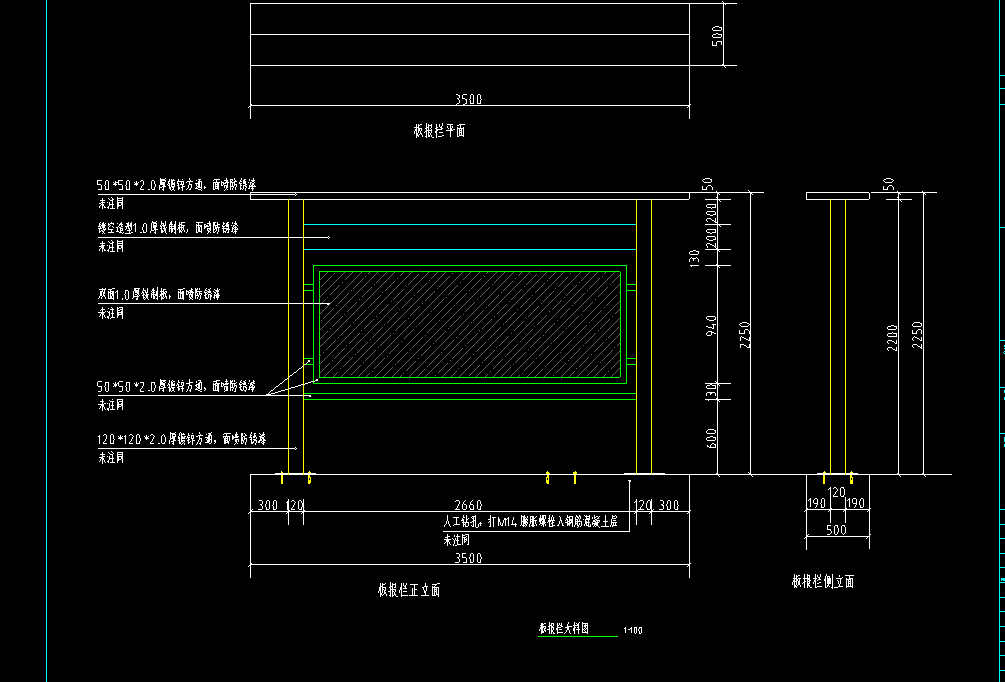
答疑:装这个宣传栏要不要计算活动脚手架?

提问网友:cong
提问日期:2025-11-07 16:39:32

活动脚手架


已采纳
解答网友:小四眼

不用

解答网友:放学丶别走

‌3.6米以下‌:简单外墙装饰(如涂刷、贴砖)可使用活动脚手架(如移动式门式脚手架、铝合金脚手架),成本较低且搭拆灵活 。

解答网友:秋高气爽

从地面组装好在立起来,不需要架子

0

评论0

请先
GB/T 10963.1~3-2020 电气附件 家用及类似场所用过电流保护断路器 共3部分PDF下载
GB/T 10963.1~3-2020 电气附件 家用及类似场所用过电流保护断路器 共3部分PDF下载
9分钟前 有人购买 去瞅瞅看
没有账号?注册  忘记密码?

社交账号快速登录

微信扫一扫关注
扫码关注后会自动登录网站