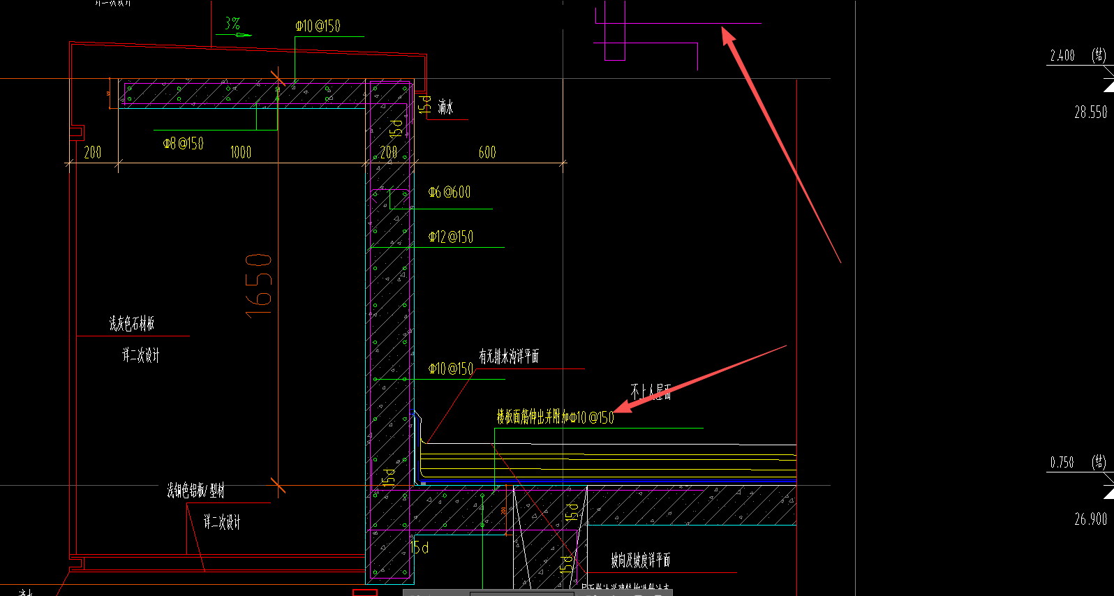
答疑:这个附加钢筋是这个范围吗

提问网友:张张张
提问日期:2025-11-07 16:27:45

附加钢筋附加


解答网友:钢筋撑起半边天

钻石专家

是的

解答网友:放学丶别走

是的。

解答网友:十年工程人

答疑解惑

0

评论0

请先
高清完整1~9册合订本 06MS201 市政排水管道工程及附属设施图集(499页OCR文字可搜索)
高清完整1~9册合订本 06MS201 市政排水管道工程及附属设施图集(499页OCR文字可搜索)
3分钟前 有人购买 去瞅瞅看
没有账号?注册  忘记密码?

社交账号快速登录

微信扫一扫关注
扫码关注后会自动登录网站