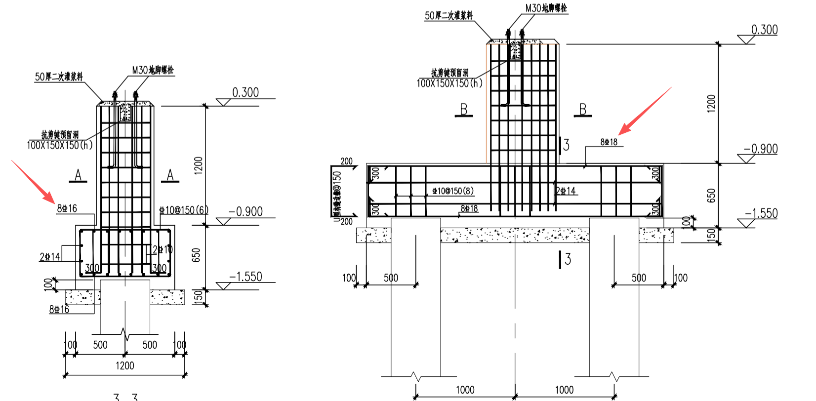
答疑:请问,图中承台上部钢筋是按8C18+8C16布置吗?

提问网友:匿名用户
提问日期:2025-11-07 16:25:51

上部


解答网友:GXZ

钻石专家

选择梁式配置钢筋承台编辑,对应在参数承台中输入钢筋信息

解答网友:Ruin

专家

图纸标注有误,面筋要不是8C18要不是8C16,不会是8C18+8C16,两个剖面标注不一致

解答网友:秋高气爽

解答网友:十年工程人

咨询设计人员  如果是同一个承台的话是有问题的

0

评论0

请先
上千页,2023年最新国家电网典型违章库!
上千页,2023年最新国家电网典型违章库!
6分钟前 有人购买 去瞅瞅看
没有账号?注册  忘记密码?

社交账号快速登录

微信扫一扫关注
扫码关注后会自动登录网站