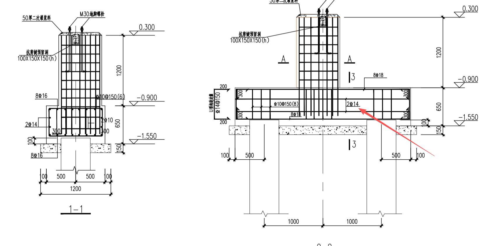
答疑:请问节点大样拉筋绘制,除了手动编辑

提问网友:0794
提问日期:2025-11-07 15:53:25

节点大样


解答网友:钢筋撑起半边天

钻石专家

拉筋可以直接定义的  你用剪力墙或者栏板都可以直接定义拉筋的信息

解答网友:下雨天

专家

直接按剪力墙设置,拉筋就C8@600*600设置

解答网友:文竹

白银专家

在截面编辑画直线就行 ,不用是S形

解答网友:放学丶别走

墙拉筋选择梅花布置就行了。

解答网友:SOFTICE

铂金专家

建剪力墙构件,直接输入

0

评论0

请先
高清PDF《混凝土结构构造手册(第五版)》中国有色工程有限公司(原中国有色工程设计研究总院)主编
高清PDF《混凝土结构构造手册(第五版)》中国有色工程有限公司(原中国有色工程设计研究总院)主编
9分钟前 有人购买 去瞅瞅看
没有账号?注册  忘记密码?

社交账号快速登录

微信扫一扫关注
扫码关注后会自动登录网站