BIM
BIM吧
整体模型
族
其他资料
Dynamo
设计
方案
整体场景
单体模型
RHINO
施工图设计
结构
机电设计
材质渲染
D5素材
ENS素材专区
lumion素材
PS素材
规范图集
标准规范
行业图集
教程
视频
软件
Office
编程
造价
施工技术
计量计价
造价答疑
在线工具
管理
登录
注册
搜索
当前位置:
首页
造价
造价答疑
正文
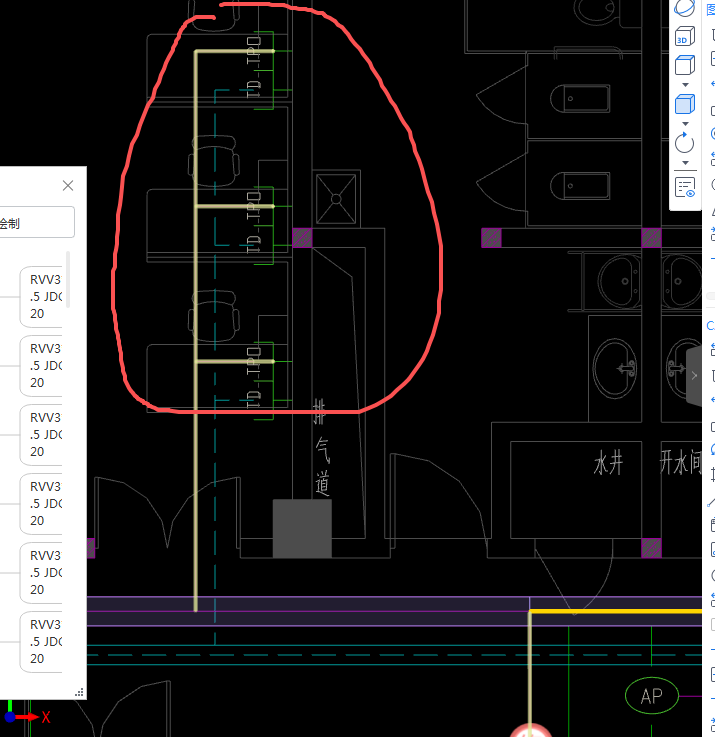
答疑:这种的桥架走三趟线还是一趟?
1周前
造价答疑
3
推广
提问网友:。。。
提问日期:2025-11-07 14:50:18
解答网友:甜瓜
黄金专家
三根线
0
上一篇
答疑:短柱纵筋设置插筋的钢筋接头可以计算费用吗
下一篇
答疑:交通平面图
猜你喜欢
造价答疑
答疑:钢筋规格问题
提问网友:pilgrim提问日期:2025-11-14 15:27:52这里没标注的800长的板负筋和1000...
3天前
3
造价答疑
答疑:北京有关窝工人工费该怎么计算,是按定额人工单价乘以系数吗,一般乘以多少系数
提问网友:皇軒提问日期:2025-11-14 15:31:09解答网友:胡老师 ...
3天前
2
造价答疑
答疑:老师,这个手算要如何算呢
提问网友:小赵提问日期:2025-11-14 15:31:48解答网友:十年工程人调整图纸比例 ...
3天前
2
造价答疑
答疑:冬季施工费计取问题
提问网友:小小提问日期:2025-11-14 15:32:02在总承包工程中,例如有两个月工期,...
3天前
2
造价答疑
答疑:请问这种后浇带钢筋怎么设置啊
提问网友:形同陌路提问日期:2025-11-14 15:32:50已采纳解答网友:钢筋撑起半边天...
3天前
2
造价答疑
答疑:WKL4的原位标注 是全部的WKL4都要原位标注吗
提问网友:王哈哈提问日期:2025-11-14 15:34:39解答网友:钢筋撑起半边天 ...
3天前
2
评论
0
请先
登录
正式版 SH/T 3233-2024 石油化工建(构)筑物防腐蚀设计规范.pdf
10分钟前 有人购买
去瞅瞅看
在线客服
升级VIP
返回顶部
没有账号?
注册
忘记密码?
社交账号快速登录
已有账号?
登录
社交账号快速登录
微信扫一扫关注
扫码关注后会自动登录网站
使用其他方式登录/注册
评论0