BIM
BIM吧
整体模型
族
其他资料
Dynamo
设计
方案
整体场景
单体模型
RHINO
施工图设计
结构
机电设计
材质渲染
D5素材
ENS素材专区
lumion素材
PS素材
规范图集
标准规范
行业图集
教程
视频
软件
Office
编程
造价
施工技术
计量计价
造价答疑
在线工具
管理
登录
注册
搜索
当前位置:
首页
造价
造价答疑
正文
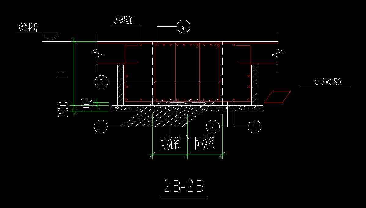
答疑:请问桩承台这个配筋形式如何设置,请大神指点
2025-11-09
造价答疑
9
推广
提问网友:陈
提问日期:2025-11-07 11:13:59
解答网友:十年工程人
梁式
0
广联达
上一篇
答疑:这是水表组还是分开计算?
下一篇
答疑:请问图中这根梁标注1a 支座该怎么设置?
猜你喜欢
造价答疑
答疑:机械拆除人行道砖下面的砂垫层,套下面哪个定额合适?
提问网友:钢铁梦提问日期:2025-12-29 17:38:23解答网友:米老鼠 ...
2周前
5
造价答疑
答疑:这个页岩砖从±0开始,底标高是多少?
提问网友:辉辉提问日期:2025-12-29 17:40:33解答网友:GXZ ...
2周前
3
造价答疑
答疑:在电源室中哪个配电箱是监控室电源预留箱
提问网友:挖呀挖呀挖提问日期:2025-12-29 17:42:50已采纳解答网友:芋头 ...
2周前
4
造价答疑
答疑:槽钢C45a的理论重量与表面积是多少
提问网友:尤琪z提问日期:2025-12-29 17:46:20槽钢C45a的理论重量与表面积是多少...
2周前
4
造价答疑
答疑:土建套价课程
提问网友:超级新手提问日期:2025-12-29 17:46:46新手想系统地学习套价,哪位老师...
2周前
4
造价答疑
答疑:可视对讲系统,是“多立管”还是“单立管”呢
提问网友:快乐心情提问日期:2025-12-29 17:50:12解答网友:芋头 ...
2周前
4
评论
0
请先
登录
高清、无水印 21J925-2 金属面夹芯板建筑构造(替代01J925-1、 06J925-2、08J925-3、OCR完整版).pdf
5分钟前 有人购买
去瞅瞅看
在线客服
升级VIP
返回顶部
没有账号?
注册
忘记密码?
社交账号快速登录
已有账号?
登录
社交账号快速登录
微信扫一扫关注
扫码关注后会自动登录网站
使用其他方式登录/注册
评论0