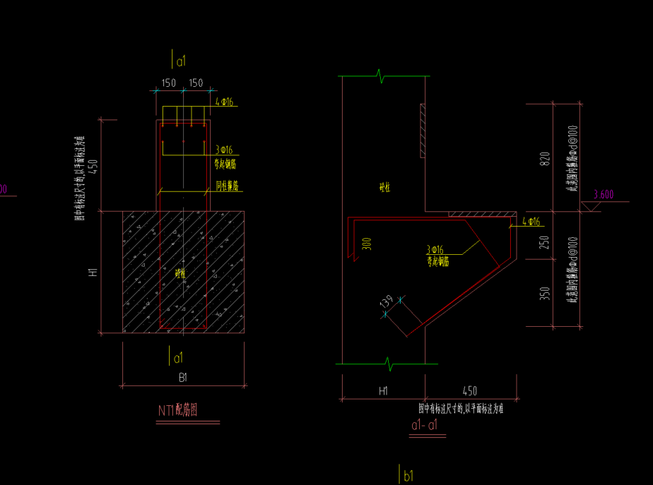
答疑:这个牛腿钢筋怎么计算

提问网友:不耻下问
提问日期:2025-11-07 09:59:05

牛腿


解答网友:GXZ

钻石专家

在表格中选择相对应的参数构建定义

解答网友:文竹

白银专家

用异形栏板,钢筋截面编辑

解答网友:下雨天

专家

钢筋怎么

0

评论0

请先
GB50038-2005(2023年版) 人民防空地下室设计规范
GB50038-2005(2023年版) 人民防空地下室设计规范
8分钟前 有人购买 去瞅瞅看
没有账号?注册  忘记密码?

社交账号快速登录

微信扫一扫关注
扫码关注后会自动登录网站