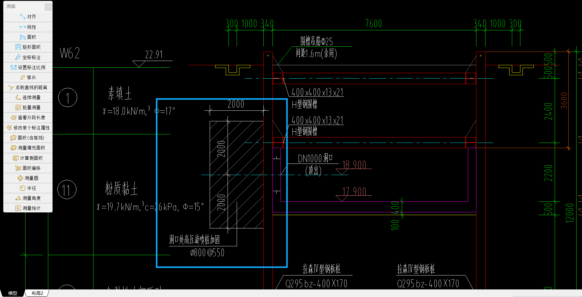
答疑:洞口处高压旋喷桩加固什么意思

提问网友:桃醉
提问日期:2025-11-07 08:59:12

桩


解答网友:造价人职场充电宝

“洞口处高压旋喷桩加固” 是一种地基处理与土体加固技术,以便增强洞口土体的稳定性。

0

评论0

请先
110kV送电线路常用杆塔工程图集 设计·计算·施工图
110kV送电线路常用杆塔工程图集 设计·计算·施工图
刚刚 有人购买 去瞅瞅看
没有账号?注册  忘记密码?

社交账号快速登录

微信扫一扫关注
扫码关注后会自动登录网站