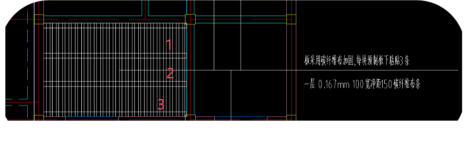
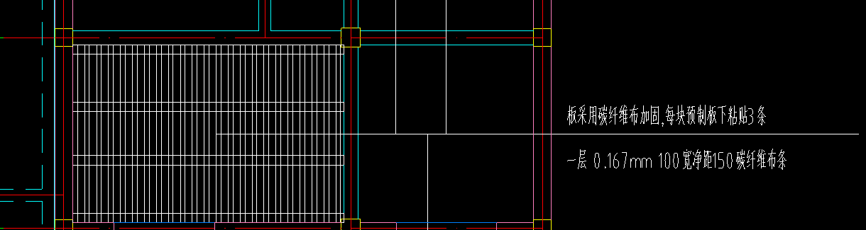
答疑:每块预制板下粘贴3条啥意思,一共粘基层啊

提问网友:北极之星
提问日期:2025-11-07 08:31:07

预制板


解答网友:xagcc

钻石专家

每块预支板下粘贴3条碳纤维布

解答网友:钢筋撑起半边天

钻石专家

一层  三块

预制

0

评论0

请先
487页电能计量装置典型设计 改造部分 .pdf
487页电能计量装置典型设计 改造部分 .pdf
刚刚 有人购买 去瞅瞅看
没有账号?注册  忘记密码?

社交账号快速登录

微信扫一扫关注
扫码关注后会自动登录网站