答疑:各位前辈!条形基础和基础梁

提问网友:陈运湛
提问日期:2025-11-05 09:04:33

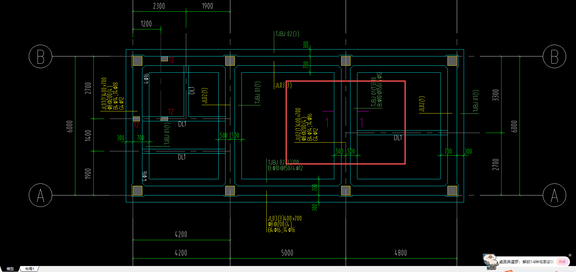
各位前辈,我想请教一下这个是条形基础吗,为什么基础梁的高度信息是到基础底的,软件里怎么画这个啊,分基础梁和条形基础两个构件绘制吗,总感觉他的剖面钢筋信息都不对构件绘制基础底


解答网友:星辰大海

钻石专家

答疑解惑

解答网友:钢筋撑起半边天

钻石专家

没有问题  软件里就是用条基和基础梁来分别处理

0

评论0

请先
国家电网10kV一体化柱上变台和配电一二次成套设备典型设计及检测规范!
国家电网10kV一体化柱上变台和配电一二次成套设备典型设计及检测规范!
6分钟前 有人购买 去瞅瞅看
没有账号?注册  忘记密码?

社交账号快速登录

微信扫一扫关注
扫码关注后会自动登录网站