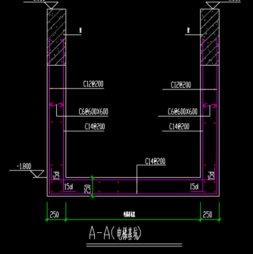
答疑:这个钢筋怎么调整啊

提问网友:梦幻西游
提问日期:2025-11-04 23:16:14

钢筋怎么


解答网友:GXZ

钻石专家

坑底用板定义布置,坑壁用剪力墙或栏板定义布置,垂直的钢筋在属性其他钢筋里编辑

0

评论0

请先
2024年最新环境保护和水土保持标准化管理手册(变电+线路)合集!
2024年最新环境保护和水土保持标准化管理手册(变电+线路)合集!
6分钟前 有人购买 去瞅瞅看
没有账号?注册  忘记密码?

社交账号快速登录

微信扫一扫关注
扫码关注后会自动登录网站