答疑:这个怎么画

提问网友:梦幻西游
提问日期:2025-11-04 21:53:37

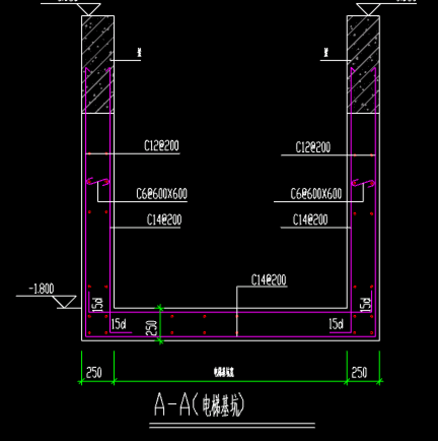
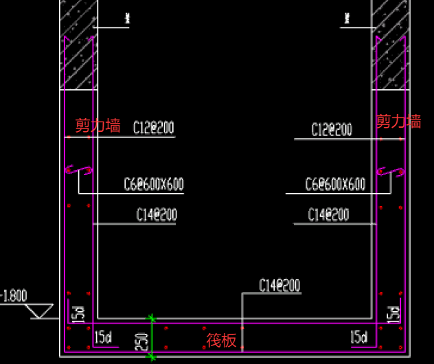
钢筋怎么

2025-11-04 22:35:18 补充

钢筋怎么解决


解答网友:欢乐心中飞雪

钻石专家

剪力墙+筏板绘制

解答网友:广联达

答疑解惑

0

评论0

请先
GB/T 229-2020 金属材料 夏比摆锤冲击试验方法.pdf
GB/T 229-2020 金属材料 夏比摆锤冲击试验方法.pdf
5分钟前 有人购买 去瞅瞅看
没有账号?注册  忘记密码?

社交账号快速登录

微信扫一扫关注
扫码关注后会自动登录网站