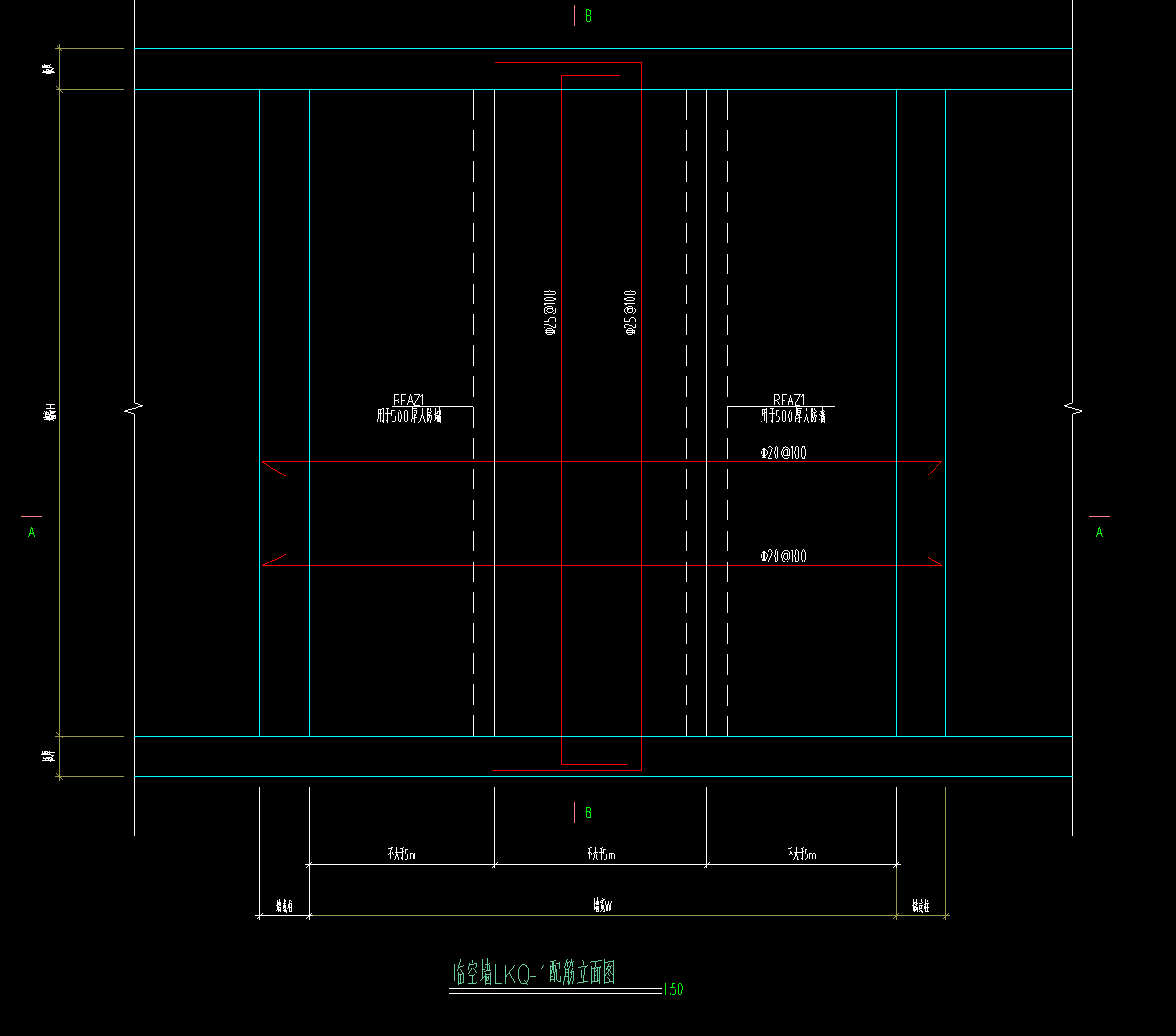
答疑:图中示意是只有下半布置水平分布筋和垂直分布筋吗

提问网友:Soobin
提问日期:2025-11-04 14:49:17

水平分布筋


解答网友:执伞

白银专家

不是,都需要

解答网友:米老鼠

铂金专家

不是,应该是全高范围内都 需要布置

解答网友:天海一线

黄金专家

整个剪力墙的水平筋和垂直筋都标注的

解答网友:星霜荏苒

钻石专家

当然不是啊,整道墙都要布置,图纸只是示意图,告诉你钢筋信息了,沿整道墙按间距布置

0

评论0

请先
T/GSEA 003-2019分布式光伏发电系统运营安全规程 T/GSEA 001-2019光伏组件到货验收技术规范 T/GSEA 002-2019光伏组件功率衰减检验技术规范共三本PDF规范下载
T/GSEA 003-2019分布式光伏发电系统运营安全规程 T/GSEA 001-2019光伏组件到货验收技术规范 T/GSEA 002-2019光伏组件功率衰减检验技术规范共三本PDF规范下载
5分钟前 有人购买 去瞅瞅看
没有账号?注册  忘记密码?

社交账号快速登录

微信扫一扫关注
扫码关注后会自动登录网站