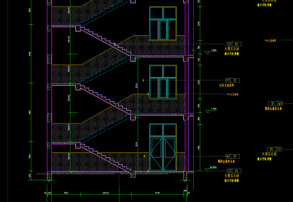
答疑:这个楼梯间的墙裙和白色无机涂料怎么计算?

提问网友:。。
提问日期:2025-11-04 14:03:00

墙裙


解答网友:刘建宁

黄金专家

按面积计算,一平30多元,认可回答请点赞全是免费进行的

解答网友:放学丶别走

不好建模的话,手算一下就行,也没有多少量。

0

评论0

请先
土地开发整理项目预算定额标准(2011年版)及《最新土地开发整理项目预算定额标准实施手册》.pdf
土地开发整理项目预算定额标准(2011年版)及《最新土地开发整理项目预算定额标准实施手册》.pdf
9分钟前 有人购买 去瞅瞅看
没有账号?注册  忘记密码?

社交账号快速登录

微信扫一扫关注
扫码关注后会自动登录网站