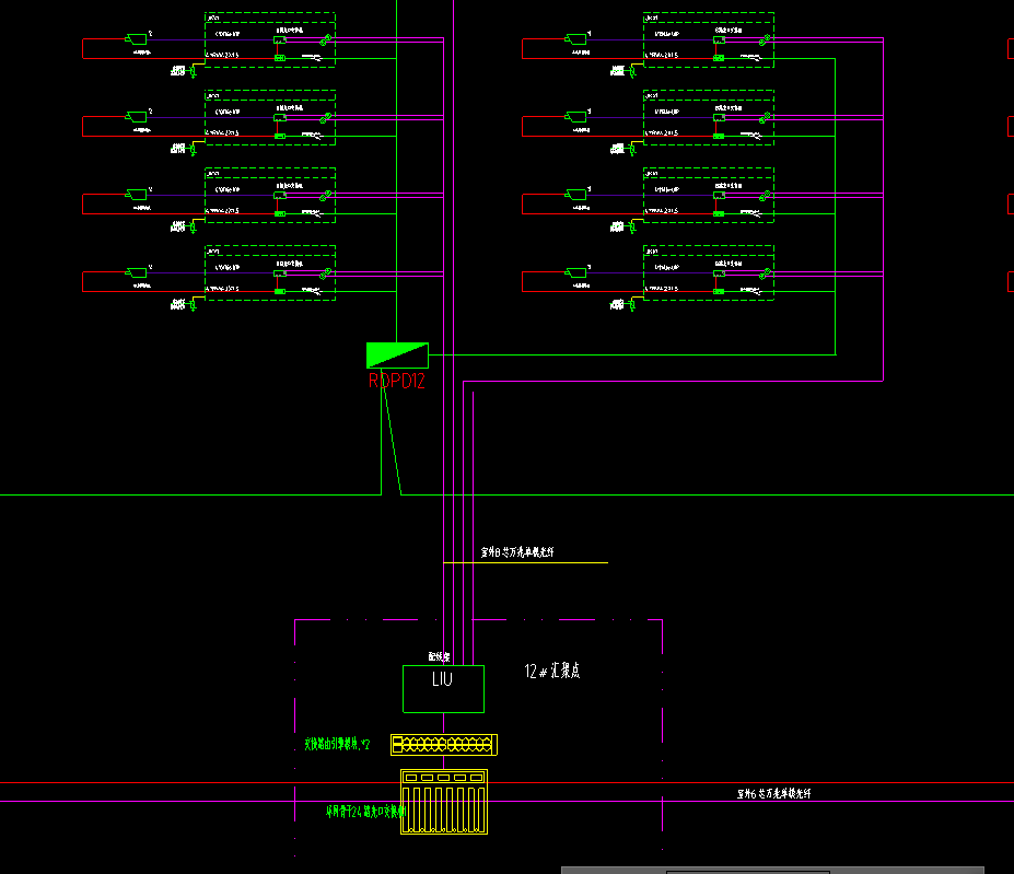
答疑:各位大佬,从这个图例看。配电箱到每个JKX1线,是分别走一根?还是一根就可以?

提问网友:刘易洋
提问日期:2025-11-03 17:53:31

配电箱

图例

电源线和网线,分别怎么走的?

2025-11-03 17:55:42 补充

答疑解惑


解答网友:造价李老爷

专家

分别算

0

评论0

请先
电网生产技术改造与设备大修项目典型造价汇编输电检修分册(2023年版)-国家电网有限公司设备管理部
电网生产技术改造与设备大修项目典型造价汇编输电检修分册(2023年版)-国家电网有限公司设备管理部
1分钟前 有人购买 去瞅瞅看
没有账号?注册  忘记密码?

社交账号快速登录

微信扫一扫关注
扫码关注后会自动登录网站