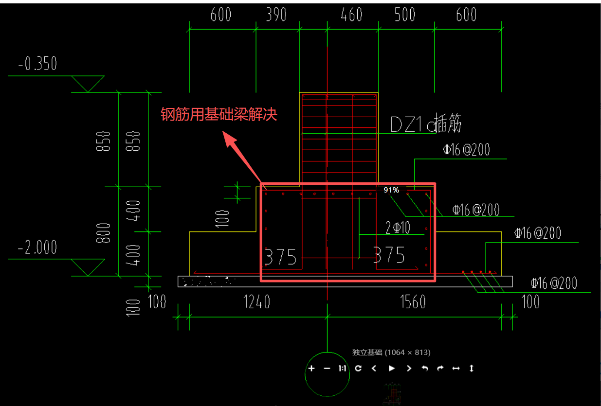
答疑:前辈们,请问下图的独立基础怎么在广联达里设置配筋?

提问网友:小y
提问日期:2025-11-03 17:12:59

独立基础


解答网友:钢筋撑起半边天

钻石专家

筏板基础+上柱墩+柱子

解答网友:小马哥

用异形桩承台处理

解答网友:十年工程人

配筋

解答网友:广联达

答疑解惑广联达服务新干线

0

评论0

请先
高清PDF带书签《GB50017-2017应用指南》赵中南 2020版
高清PDF带书签《GB50017-2017应用指南》赵中南 2020版
6分钟前 有人购买 去瞅瞅看
没有账号?注册  忘记密码?

社交账号快速登录

微信扫一扫关注
扫码关注后会自动登录网站