BIM
BIM吧
整体模型
族
其他资料
Dynamo
设计
方案
整体场景
单体模型
RHINO
施工图设计
结构
机电设计
材质渲染
D5素材
ENS素材专区
lumion素材
PS素材
规范图集
标准规范
行业图集
教程
视频
软件
Office
编程
造价
施工技术
计量计价
造价答疑
在线工具
管理
登录
注册
搜索
当前位置:
首页
造价
造价答疑
正文
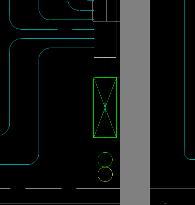
答疑:老师们,采暖上这是什么阀门?
1天前
造价答疑
2
推广
提问网友:風
提问日期:2025-11-03 16:09:43
解答网友:大家广联
钻石专家
非
标准
常用图例 得咨询设计
0
标准
上一篇
答疑:各位老师,如图地面硬化还需要怎么套取清单定额
下一篇
答疑:工程量输入
猜你喜欢
造价答疑
答疑:地区问题
提问网友:刚入门的造价人提问日期:2025-11-03 20:28:33我想问一下,在计价软件中...
1天前
2
造价答疑
答疑:财政投资项目,招标清单与拦标价工程量不一致的结算如何计算
提问网友:曾丽提问日期:2025-11-03 20:41:05某学校教室装饰维修改造项目为财政资...
1天前
2
造价答疑
答疑:这个是什么安装电气的设备?
提问网友:方奕然提问日期:2025-11-03 20:41:32已采纳解答网友:大家广联 ...
1天前
2
造价答疑
答疑:请问,这是什么阀门?水表井里的
提问网友:火柴头提问日期:2025-11-03 20:45:59解答网友:幸福像花一样 ...
1天前
2
造价答疑
答疑:GB/T 50621-2010钢结构现场检测技术标准
提问网友:心平气和提问日期:2025-11-03 20:47:09710077494@qq.com已采纳解答网友...
1天前
2
造价答疑
答疑:这个温度筋如何绘制
提问网友:****提问日期:2025-11-03 20:51:43解答网友:轻舟淡月 ...
1天前
2
评论
0
请先
登录
彩色高清无水印 20G310-3装配式混凝土结构连接节点构造(框架)图集.pdf
1分钟前 有人购买
去瞅瞅看
在线客服
升级VIP
返回顶部
没有账号?
注册
忘记密码?
社交账号快速登录
已有账号?
登录
社交账号快速登录
微信扫一扫关注
扫码关注后会自动登录网站
使用其他方式登录/注册
评论0