提问网友:走出大山
提问日期:2025-11-03 15:09:45
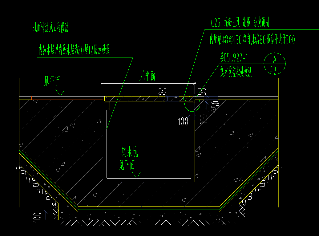
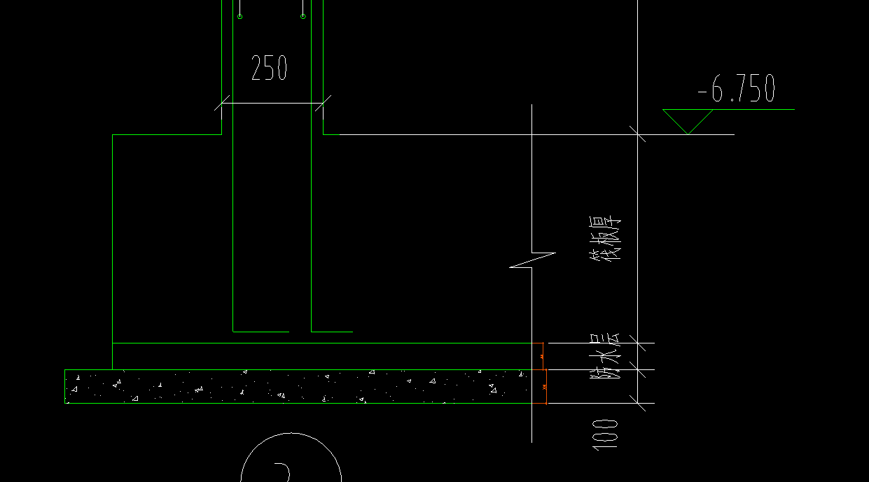
各位前辈,从这几个图里面能看到厚度是多少吗,我测的那个第四张图厚度是80,准不准
解答网友:星辰大海
钻石专家
查图集10J301
解答网友:阿古木力
黄金专家
有文字告诉你是多少,就按文字的,不要去测量
解答网友:GXZ
钻石专家
如果是防水卷材及防水砂浆,是不需要计算它的厚度,根据设计要求选择合适的定额子目计算就可以
解答网友:小雨
白银专家
-
施工:3mm沥青+4mmSBS
-
计算:通常不考虑防水层,即防水层厚度为0








评论0