提问网友:0794
提问日期:2025-11-03 15:05:49
解答网友:星辰大海
钻石专家
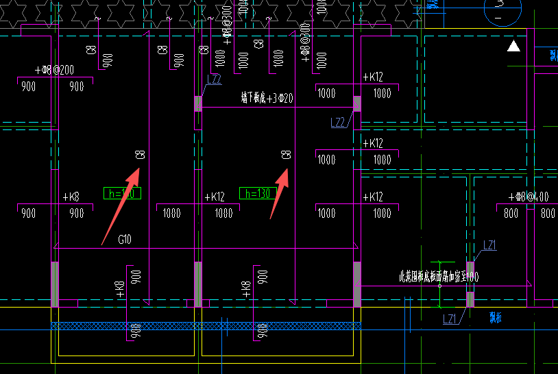
钢筋C8-150
解答网友:天山雪豹
黄金专家
看图是的
解答网友:钢筋混凝土
专家
是的
解答网友:十年工程人
是的 c8@150
解答网友:小雨
白银专家
读图正确
按说明K为间距200;G为间距150;A为间距100
如标识+K12,读图为附加C12-200
解答网友:星霜荏苒
钻石专家
是的
提问网友:0794
提问日期:2025-11-03 15:05:49
解答网友:星辰大海
钻石专家
钢筋C8-150
解答网友:天山雪豹
黄金专家
看图是的
解答网友:钢筋混凝土
专家
是的
解答网友:十年工程人
是的 c8@150
解答网友:小雨
白银专家
读图正确
按说明K为间距200;G为间距150;A为间距100
如标识+K12,读图为附加C12-200
解答网友:星霜荏苒
钻石专家
是的
评论0