提问网友:走出大山
提问日期:2025-11-03 14:17:57
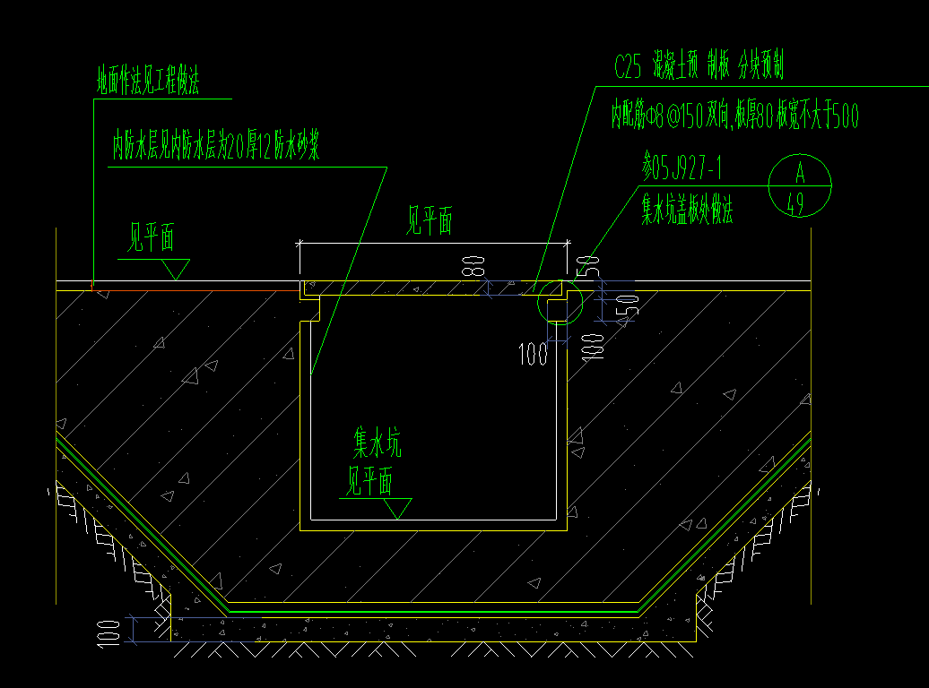
各位前辈,基础底板底的防水层到底要不要设置,我看建筑施工图中也没有,请帮我看看防水层厚度到底是多少
2025-11-03 14:26:20 补充

解答网友:小野猫
铂金专家
看看建筑做法表,底板做法吧。看集水坑 是有防水的
解答网友:一杯红酒
黄金专家
看看建筑做法中有没有说明
解答网友:nh
钻石专家
查看建筑做法说明或大样看看
提问网友:走出大山
提问日期:2025-11-03 14:17:57
各位前辈,基础底板底的防水层到底要不要设置,我看建筑施工图中也没有,请帮我看看防水层厚度到底是多少
2025-11-03 14:26:20 补充

解答网友:小野猫
铂金专家
看看建筑做法表,底板做法吧。看集水坑 是有防水的
解答网友:一杯红酒
黄金专家
看看建筑做法中有没有说明
解答网友:nh
钻石专家
查看建筑做法说明或大样看看
评论0