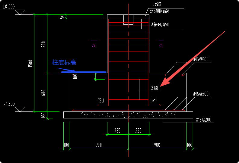
答疑:基础短柱伸入其下的基础钢筋怎么设置?基础短柱得底标高是基础顶还是基础底?

提问网友:奶淇熊
提问日期:2025-11-01 21:29:15

短柱


已采纳
解答网友:广联达

基础底答疑解惑

解答网友:钢筋撑起半边天

钻石专家

插筋伸到基础底  基础内的箍筋在柱子的计算设置里定义  柱子的底标高可以是基础顶标高,也可以是基础底标高

广联达服务新干线

0

评论0

请先
成都市房屋及市政基础设施建设工程消防查验和验收现场评定图集(上、下册)PDF及PPTX下载
成都市房屋及市政基础设施建设工程消防查验和验收现场评定图集(上、下册)PDF及PPTX下载
10分钟前 有人购买 去瞅瞅看
没有账号?注册  忘记密码?

社交账号快速登录

微信扫一扫关注
扫码关注后会自动登录网站