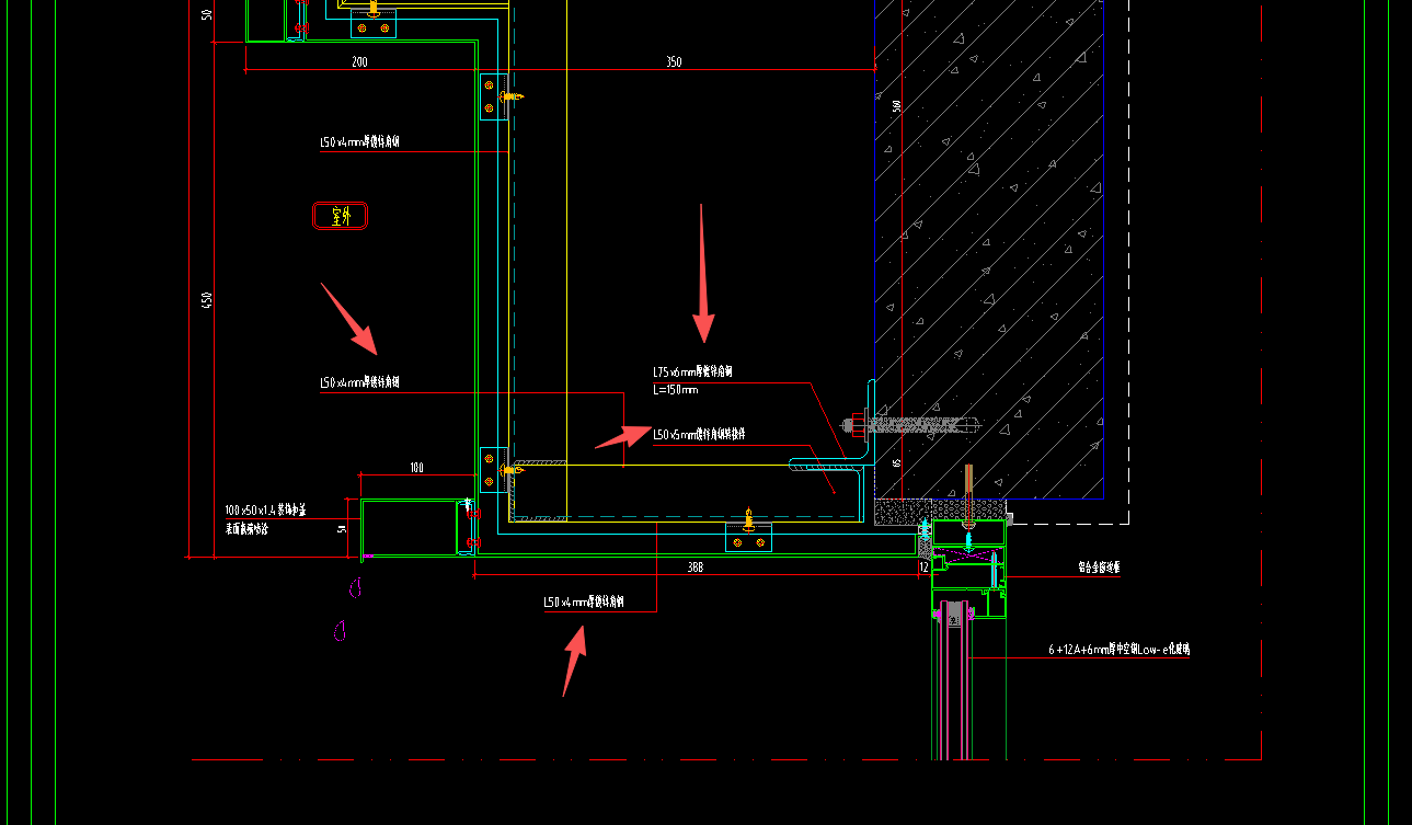
答疑:各位大神这几个埋件因该怎么计算工程量呢?广东定额

提问网友:玲玲
提问日期:2025-10-28 19:17:01

定额

2025-10-28 19:48:57 补充

广东定额答疑解惑各位大神就是只有这样的节点   是怎么计算这预埋件的重量呢?


解答网友:GXZ

钻石专家

金属预埋是计算出重量计价

解答网友:十年工程人

按重量计算

0

评论0

请先
正式版无水印 DBJ51/143-2020 四川省公共建筑节能设计标准
正式版无水印 DBJ51/143-2020 四川省公共建筑节能设计标准
5分钟前 有人购买 去瞅瞅看
没有账号?注册  忘记密码?

社交账号快速登录

微信扫一扫关注
扫码关注后会自动登录网站